【适用环境要求】
适用行业领域
适用于石油、化工、印染、橡胶轮胎、造纸、化纤、新能源、酿造、食品等中等以上及大量使用蒸汽的工业领域节能技术改造。
应用环境要求
本技术适用于冷凝水温度高于100℃,环境压力高于0.1MPa(绝压)的蒸汽间接换热设备。
【技术产品简介】
基本运行原理
采用微压差微过冷输送的原理,借助主蒸汽管道的过热蒸汽加热回收装置内部,使高温冷凝水的显热焓完全蒸发产生蒸汽用于生产,同时设置挡板式汽水分离装置改变蒸汽流向使带有水分的湿蒸汽在挡板间碰击,水分子聚集为小液滴依靠重力作用流向下端,而蒸汽用于自身密度较小可以越过挡板继续流动从而实现汽液分离,将回收装置设计成一个大型的蒸汽发生器。
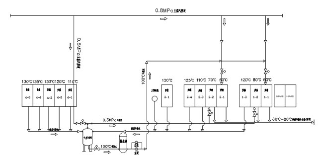
工艺流程图表

核心优势亮点
1、蒸汽压力控制稳定,排放的高温冷凝水的热焓完全蒸发变成蒸汽,提高蒸汽系统换热效率,有效降低产品单耗,提高生产效率,相比传统冷凝水回收装置节能回收率更高;
2、系统安全可靠,性能稳定,节能效果显著;
3、系统可以单套系统进行节能应用,也可根据用户情况实现高、中、低压多段梯级串联使用。
相关参数描述
凝水进入密闭回收气旋隆闪蒸系统闪蒸后排水温度100℃左右排放,100℃以上焓值全部被闪蒸回收利用。
1、容器容积:3.0 m³
2、容器内径:1200 mm
3、容器长(高):≤3300 mm
4、筒体(球壳):10 mm
5、封头:10 mm
6、容器自量:≤1200 kg
7、壳程压力:1.0 MPa
8、壳程温度:180 ℃
9、壳程介质:水、饱和蒸气
10、筒体(球壳)材料:Q345R
11、封头材料:Q345R
【经济效益分析】
投资回收周期
以凝结水排量4.5t/h,年运行时间7920h的企业为例,本公司产品成本回收期约10个月。
应用效益情况
该产品的使用过程中性能稳定可靠,大大提高了用汽效率,蒸汽节能约 15%左右,该产品实用性强,同时具有先进性、可推广性。
【潜力前景分析】
市场应用潜力
蒸汽作为工作流体和热传导介质,已成为现代工业领域不可或缺的一部分,广泛应用于各种工业领域。根据 MarketsandMarkets 最新公布的报告,2020 年全球余热回收市场总量约为 610 亿美元,预计到 2021 年可达 658.7 亿美元,年复合增长率(CAGR)达到 6.9%。作为全球第二大经济体的中国在 2020 年余热回收市场规模达到 118 亿元人民币,预计 2025 年将达到 160 亿元人民币,增长率预计为 7%左右。
推广应用现状
产品在江浙沪长三角地区得到广泛应用,已改造收益项目有50多个。
【典型案例介绍】
浙江禾欣新材料有限公司用汽设备(湿法生产线、干法生产线、干法环保线、印刷线、连揉线、吸塑+热压线)主蒸汽管道输送压力为1.2MPa(表压)、190℃饱和蒸汽;改造前疏水阀有蒸汽泄漏现象,现场可见空气中白色污染,浪费比较严重,生产线排放的高温冷凝水温度在140℃左右,其中含有大量热焓值没有被直接利用造成能源浪费,通过无疏水阀蒸汽冷凝水密闭回收系统改造后,借助主管道蒸汽和闪蒸汽在蒸汽引射提温升压系统混合生成与工艺参数相匹配的高品位饱和蒸汽,供部分烘箱第一箱或前两箱、一段烘箱、其他用汽设备使用,闪蒸后100℃低温冷凝水去排水管网,减少了原有蒸汽的使用量,实现节能降耗。蒸汽系统经过优化改造后可实现年节能收益约为1354.8万元。如按设备寿命平均10年计算,本项目改造连续10年可实现总收益1.35亿元。
【信息提供单位】
单位名称
苏州晟德亿节能环保科技有限公司
单位名称
苏州晟德亿节能环保科技有限公司成立于2017年12月22日,是江苏省高新技术企业,公司致力于工业蒸汽系统节能优化、能耗诊断、技术咨询、方案设计、技术服务、关键设备设计制造与销售、项目投资、合同能源管理等业务,帮助企业提升生产安全性、产品品质和生产效率,降低生产运行成本,并实现节能减排和环境保护。公司始终引领蒸汽节能新技术,根据客户的生产工艺具体要求,进行勘察,诊断,提供系统的优化方案。可为客户产生节能效益10%-40%, 综合能耗降低20%以上。据不完全统计公司实施项目已实现每年蒸汽节能量181.12万吨,折算标准煤17.01万吨,减少二氧化碳排放60.87万吨。公司凭借专业技术和设备为广大客户提供综合性节能降耗服务,降低企业经营成本,增强企业核心竞争力,为中国创建绿色节能和能源循环利用的人类可持续性发展做出应有的贡献,助力国家推进2030年碳达峰、2060年碳中和。
上一篇: 爱柯CO2空气源热泵机组
下一篇: 绕组式永磁耦合调速器